Detailed Play PRO Commercial Playground Equipment Detailed Play Systems, Residential & Backyard Playground Equipment
Detailed Play Systems, Residential & Backyard Playground Equipment

Swing Set Plans Swing Sets Playground Equipment Slides Swings Roof Tarps

detailed play systems    Building Playground Memories     Playground Equipment
DETAILED PLAYGROUND PLANS - ASSEMBLY DIAGRAMS
swing set diagrams
detailed playground plans

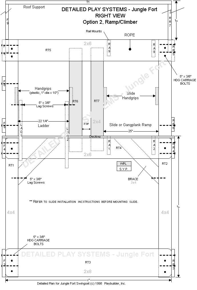
A one-page example of the easy to follow ASSEMBLY DIAGRAMS included in our plans is shown below.
Notice that 3/8" HDG CARRIAGE BOLTS (not lags or screws or nails) are used to fasten all joints.
Swing Set Assembly Diagram
Plan Contents Site Plans  Accessory Plans Lumber Guide Assembly Diagrams Step-by-Step Instruction

Detailed Play Systems
Detailed Play Systems
Backyard Playground Equipment
Contact Us
Customer Photos
  GoDaddy Secure
Follow Us: facebook twitter pinterest googleplus

Copyright © 1998- Playbuilder Inc. | Site Map | Resources